SANBORNTON — It’s a country town with a small police department operating in very small space – one that has become increasingly risky and outmoded over 20 years.
Voters at Sanbornton's Town Meeting on Saturday will be asked to approve a $2.208 million bond to relocate the police department and build new town offices – a project that has been on the agenda before. But it's resurfacing now as a scaled-back version with the price cut in half and a much lower interest rate – a more budget-conscious way to solve a lingering problem that proponents say remains dangerous and embarrassing.
If approved at the 10 a.m. meeting, the bond will result in annual tax increase of $0.11 to $0.12 cents per $1,000 of assessed property valuation, or $33 to $34 on a property valued at $300,000 – the median home price in Sanbornton.
Along with $600,000 from the town’s unassigned balance or rainy day fund, and $172,000 from the building and capital improvement fund, the money will enable Sanbornton to build a new 2,660-square-foot town office building behind the old town hall on Tower Hill Road – a modest gain over the current 2,400-square-foot office building on Rt. 132 next to the Sanbornton Fire Department.
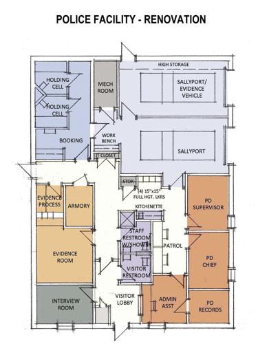
But more importantly, the money will enable the Sanbornton Police Department to move to the space vacated by the current town offices. The department would give up its current 900-square-foot quarters – which lacks a bathroom, a sallyport (a secure garage for police cars carrying prisoners or detainees) or a secure space dedicated for interrogation. It would be a big boost in safety and security, proponents maintain.
Police currently question detainees next door – in the fire department’s kitchen – a room loaded with potential weapons to grab, including pots and kitchen knives. It’s been a dicey situation at best, said Sanbornton Police Chief Steven Hankard and members of town committees.
The project has overwhelming support – theoretically. Most townspeople agree the police need a safer and more secure place to operate, the project’s proponents agree. Opponents argue against any tax increase in lean times, and in the past have said they’d vote for a capital improvement project for the police department alone. Lumber and material costs have hit new highs with shortages during the pandemic, but supporters argue that this two-for-one project is a good deal for what it will provide now and in the future.
“We’ve basically been making-do with what we’ve had for decades,” said Hankard, who has been with the police department for over 25 years. The project first was discussed in the late 80s, he said, and the space police currently occupy was designed as administrative offices. “The police department has specific needs that the building doesn’t provide,” Hankard said.
In addition to the lack of bathroom, sallyport and secure interrogation room, the current location in the same building with the fire department has only one cell for detainees. By law juveniles must be separated from adults, and that becomes a problem if both juveniles and adults are taken into custody, Hankard said.
The space in the current town office building will need to be renovated and outfitted for police needs, and will include two cells, adequate bathrooms, a secure area for storing guns and ammunition, and a secure, larger space for storing evidence. It would also include a secure interrogation room without anything that can be used as a weapon. Right now, Sanbornton officers march handcuffed detainees through the police department’s public and administrative area where the secretary sits, through a doorway into the fire department, where firefighters and equipment are present, to use the bathroom or the kitchen area for private questioning.
In 2015, Primex, the town’s insurance carrier issued “a 9-page report about everything that’s wrong,” Hankard said. “Our main safety and security concern is prisoner handling.”
At present police cars pull up to the back door to unload people taken into custody – which has risks for escape, and also prisoner injury. Police worry what will happen if a handcuffed prisoner slips on ice in winter and gets hurt – an accident that is a liability for the town. Although weapons are always securely stored, there are boxes of ammunition in the chief’s office for lack of safe storage space. Prisoners could grab flashlights, pens, large reference manuals, confidential files, or heavy boxes – which might be wielded against officers.
“The more you walk through an unsecured area, there’s more of a chance of escape,” Hankard said. Police have a lot of stuff that needs storage, including gear bags that hold pens and flashlights. “There are items that could be used against an officer.”
There is no secured armory, a staple in most departments. Instead, guns are stored in a Wal-Mart style gun safe in the chief’s office.
“We don’t have something as basic as an interrogation room. We have to interview people in a shared kitchen with the fire department, with knives and pans and potential weapons in there, where we interview suspects and victims,” Hankard said. “From what I’ve seen, the townspeople are sympathetic and know the problem we have. I’ve heard our police department described as shameful and embarrassing for the department. People do know the need."
“The main thrust is security and safety – because of the size they’re out of compliance with many state mandates that police departments should have,” said Brendan Morrison, who served on the town’s building construction committee. “We are out of compliance with so many of the state regulations.” Also lacking is privacy when police bring detainees through the back door, in potential view of any onlookers.
Morrison hopes voters will jump to approve this now. “There’s the normal reaction of anybody: ‘I don’t want my taxes to increase.’ But the municipal bond interest rate is less than 1 percent now, so it’s worthwhile to take advantage of that.”
The project proposes to construct a 2,400-square-foot building on roughly 3.5 acres the town owns behind the old town hall, Sanbornton Congregational Church and Sanbornton Public Library. The new building would be used primarily as offices, while meetings of the select board and various committees would take place in the old town hall.
“We’re not trying to make a Taj Mahal,” Morrison said. “We’re trying to build something that is functional for at least the next 20 years, with expansion possibilities, including at the police station. It makes sense to give them both the option so if there needs to be an expansion, there’s room for it.”
Since October 2019, Morrison said, the building construction committee met 60 times to hone a workable, economical project. An alternative proposal two years ago involved adding to the old town hall, and a bonding project of close to $7 million.
“That proposal was much more extravagant, and more than double the money,” said Ray Masse, a resident who is in favor of this more economical version. “This has been under consideration for two decades. The main issue is the police department facilities as they are today” and whether they meet society’s and the town’s needs. “They are inadequate. There have been a number of safety concerns raised by the town’s insurance on a number of occasions.”
Saturday’s meeting will take place in a large outdoor tent for 300 in the field behind the old town hall, church and library, which can be accessed from the parking lot across from Sanbornton Central School, where residents are encouraged to park.


(0) comments
Welcome to the discussion.
Log In
Keep it Clean. Please avoid obscene, vulgar, lewd, racist or sexually-oriented language.
PLEASE TURN OFF YOUR CAPS LOCK.
Don't Threaten. Threats of harming another person will not be tolerated.
Be Truthful. Don't knowingly lie about anyone or anything.
Be Nice. No racism, sexism or any sort of -ism that is degrading to another person.
Be Proactive. Use the 'Report' link on each comment to let us know of abusive posts.
Share with Us. We'd love to hear eyewitness accounts, the history behind an article.