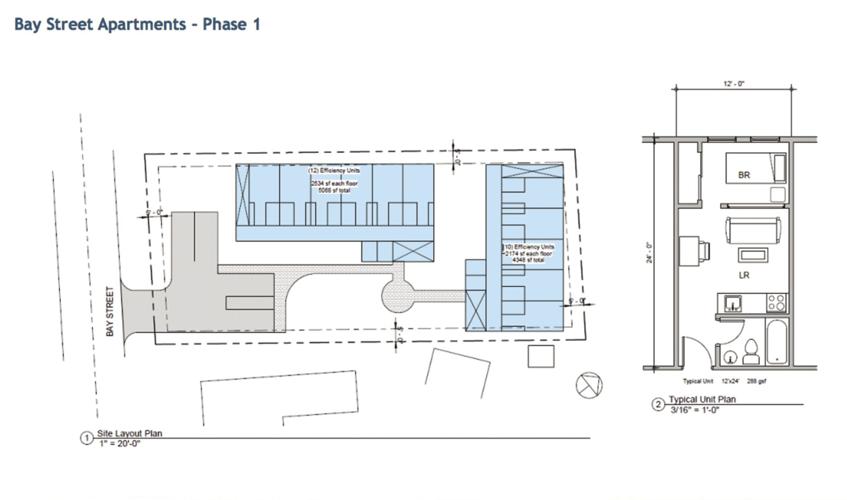
LACONIA — Belknap County Commissioners approved a requested for a 12-unit, income-based housing development on Bay Street at their meeting Monday. With grant funding, the project will not add any cost burden to the county.
The commissioners also welcomed their newest member, former Sheriff Steve Hodges. Hodges, who served as clerk, was elected to fill the seat of former County Commissioner Hunter Taylor, who also served as clerk. Peter Spanos and Glen Waring retain their positions as chair and vice chair respectively.
Other topics broached at the meeting included concerns about jail capacity and a move to sign a contract with the state of New Hampshire for a loan to assist with recent projects at the county nursing home.
Carmen Lorentz, director of Lakes Region Community Developers, presented a request to apply for a $500,000 Community Development Block Grant through the county to fund a 12-unit housing development at 1719 Bay Street.
“In CDBG, one of the sources has to run through a municipality,” Lorentz explained. “It can be a county, city or town. The CDBG in New Hampshire has a limit of $500,000 per fiscal year they can apply.”
Lorentz explained her organization already applied for a CDBG through the city for a much smaller project.
“Myself and my team know how difficult it is for people of extremely low income to find and afford housing, because many of the types of families we serve are in this type of situation” said Celyne Godbout, the director of residential services at Lakes Region Mental Health Center, at the meeting.
“This type of housing helps and supports folks to stabilize, which will in turn address the homelessness crisis and save costs on public safety, emergency medical care and high utilization of these resources.”
All three county commissioners voted unanimously to approve Lorentz's application request.
Lorentz said she was confident in her organization’s ability to obtain the funds.
The approval is just one of the early steps in getting the development off the ground. Lorentz said the rest of the project will be funded with a traditional bank loan, and an additional $1.5 million from the state’s supportive housing program.
“This project is in the city’s performance zone,” Lorentz explained.
“If the planning board approves the plan, the site plan isn't subject to zoning board review. That helps expedite the process. That’s a relatively new feature of the city’s land use law. That's the first time they’ll use it.”
The units themselves will be small efficiency-style dwellings meant for one person, and will have an annual gross income limit of $18,200 for applicants, or 30% of the area’s individual median income. Rent will cost just under $800 per month, in accordance with Housing and Urban Developments fair market rate.
Following the housing proposal and an update on the county’s infrastructure from Facilities Director Jon T. Bossy, the commissioners had a lengthy discussion with County Attorney Andrew Livernois and Corrections Superintendent Adam M. Cunningham regarding the Corrections Opportunity for Recovery and Education, or CORE, program and the Community Corrections Center.
The CORE program is a recent option for low-level drug offenders. If qualified, they receive mandatory treatment, counseling, and assistance in reintegration with society in addition to their sentence.
The CCC was completed in 2017 to support CORE, but the facility has not seen many visitors.
“At only one point did we exceed 50% occupancy in the building,” said Cunningham, referring to a population graph.
“You can see that we have wildly varied this year. One of the questions is, 'What’s going to happen next year?' We’re not in a pattern. That’s the best way I can describe it right now.”
“There have been concerns previously of the underutilization of this space,” Spanos explained.
“We all discussed how should we be looking to find a higher purpose for this space. This begins the process of brainstorming.”
Hodges said he would like to tour the facility in order to better understand the situation.
By contrast, the Belknap County Jail has reached its occupancy multiple times, forcing prisoners to be transferred outside the county.
Waring suggested at least exploring the cost of “hardening” a portion of the CCC to allow it to house higher-security inmates.
“I would venture it would probably be in the millions of dollars to even harden half of that building,” Cunningham said.
In an interview, Cunningham explained that while the CCC has only ever reached 56% of capacity, the entire facility is still in use due to the layout and security of the structure.
The commission voted unanimously to agree to a loan from the state to support recent repair and improvement projects at the nursing home.
“The state of NH has opened up some of their ARPA funding to assist counties; this was a nursing home program,” explained County Administrator Debra Shackett.
“They asked if we had projects that were completed or planned that would qualify for ARPA funding and they would provide 40% of the project costs. I submitted an application to them. I was pleasantly surprised they approved it.”
Shackett said the state agreed to give Belknap county $608,000, which accounts for 40% of recent improvements to the nursing home including a generator, skylight, window installations and pipe and flooring work. The money would be granted to the county in the form of a loan.
“The terms of the loans are as long as you spend the money on what you said and submit to all our reporting and auditing requirements, then we will forgive the loan in June or the summer of 2024,” Shackett said.
The commissioners voted unanimously to authorize Spanos to sign the agreement.
“That’s very good support for the county and much needed,” Spanos said.


(0) comments
Welcome to the discussion.
Log In
Keep it Clean. Please avoid obscene, vulgar, lewd, racist or sexually-oriented language.
PLEASE TURN OFF YOUR CAPS LOCK.
Don't Threaten. Threats of harming another person will not be tolerated.
Be Truthful. Don't knowingly lie about anyone or anything.
Be Nice. No racism, sexism or any sort of -ism that is degrading to another person.
Be Proactive. Use the 'Report' link on each comment to let us know of abusive posts.
Share with Us. We'd love to hear eyewitness accounts, the history behind an article.