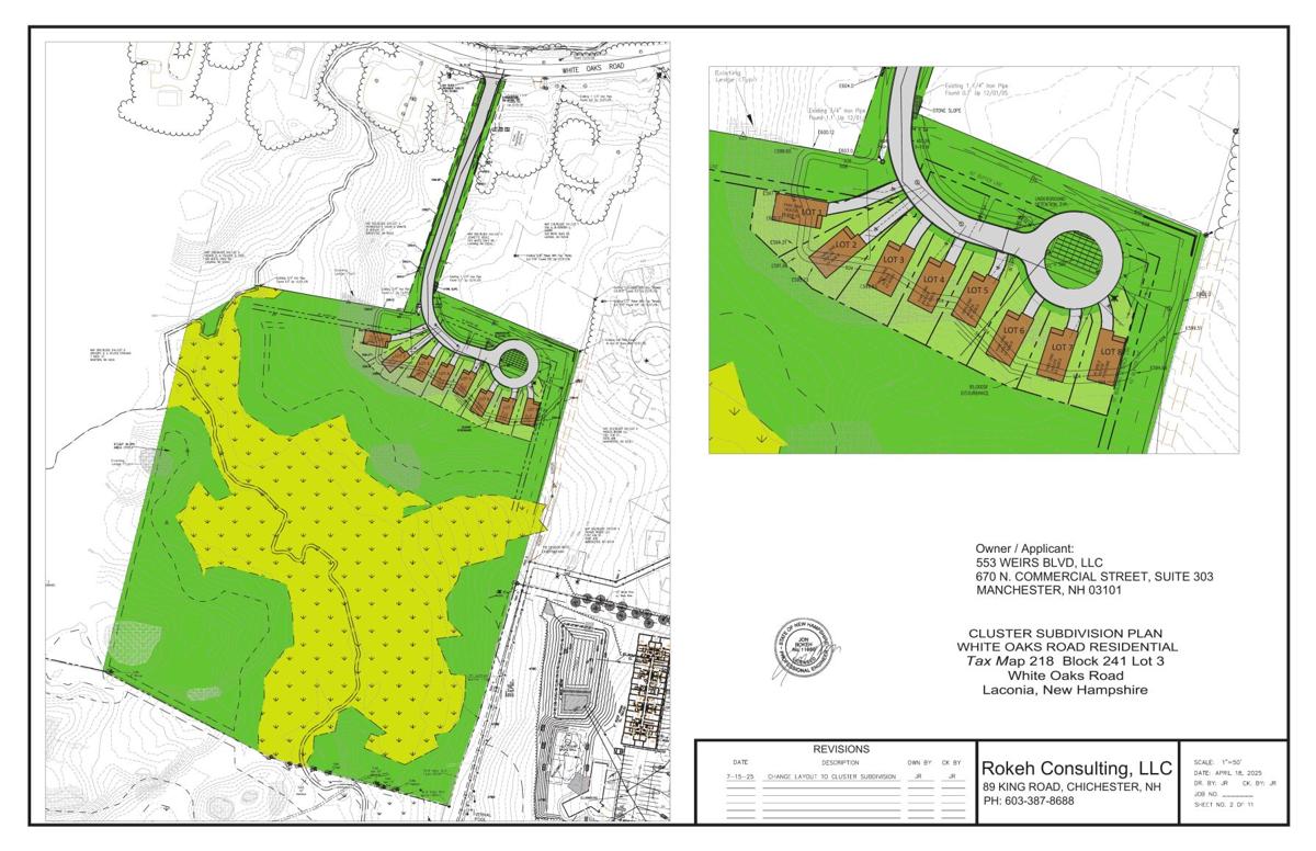
The concept for an eight-unit cluster subdivision on White Oaks Road was presented to the city's Planning Board in September. At their meeting on Tuesday night, the board approved two waivers for the project. (Courtesy graphic/City of Laconia)
Get up-to-the-minute news sent straight to your device.
(0) comments
Welcome to the discussion.
Log In
Keep it Clean. Please avoid obscene, vulgar, lewd, racist or sexually-oriented language.
PLEASE TURN OFF YOUR CAPS LOCK.
Don't Threaten. Threats of harming another person will not be tolerated.
Be Truthful. Don't knowingly lie about anyone or anything.
Be Nice. No racism, sexism or any sort of -ism that is degrading to another person.
Be Proactive. Use the 'Report' link on each comment to let us know of abusive posts.
Share with Us. We'd love to hear eyewitness accounts, the history behind an article.